Electra is a luxury three‑storey residential development proposed on Metochiou Street in the Agios Andreas district of Nicosia.
The project includes nine two‑bedroom apartments arranged across a ground floor and two upper floors.
Its location on the edge of the Pedieos linear park and within easy reach of the historic walled city and central shopping district makes it an attractive address for urban dwellers.
Completion | Q4 2027
Inspiration
The concept behind Electra embraces a contemporary yet timeless aesthetic that respects the special character of Agios Andreas and its natural surroundings. Inspired by modernist architecture, the design aims to integrate indoor and outdoor living. Electra will similarly honour its neighbourhood’s identity while delivering enduring architectural form and practical urban living.
Architecture
The architectural philosophy of Electra follows a modern yet timeless approach, carefully curated to respect the area's distinct environmental and cultural character.
The façade utilizes premium materials in earthy tones and rich textures, ensuring the building integrates harmoniously with its surroundings while exuding a discreet, contemporary elegance.
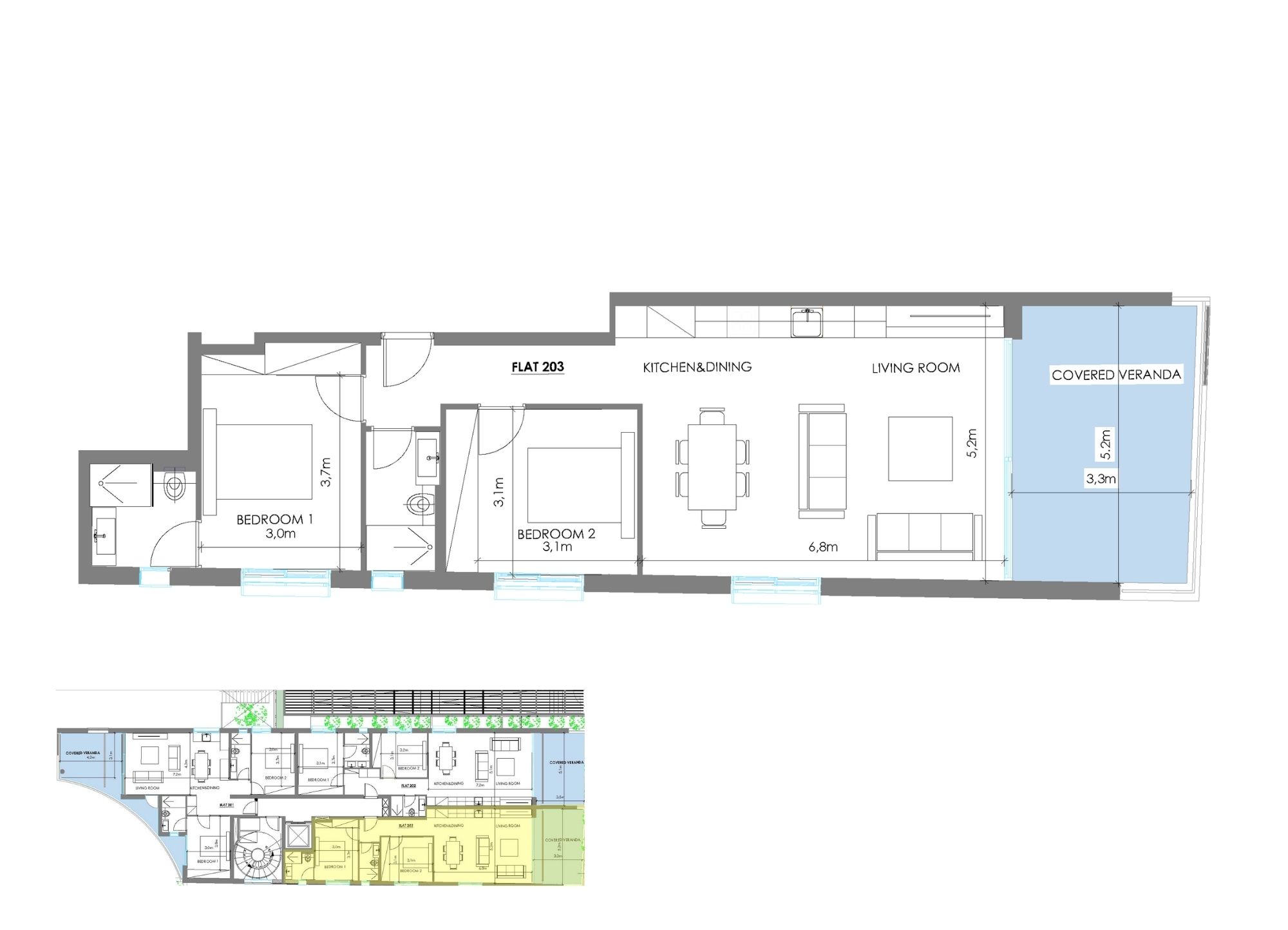
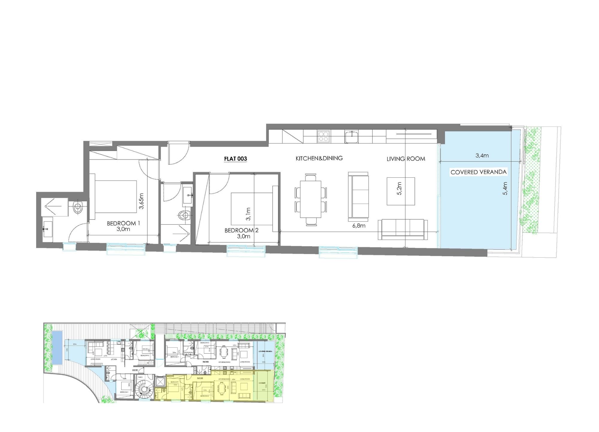
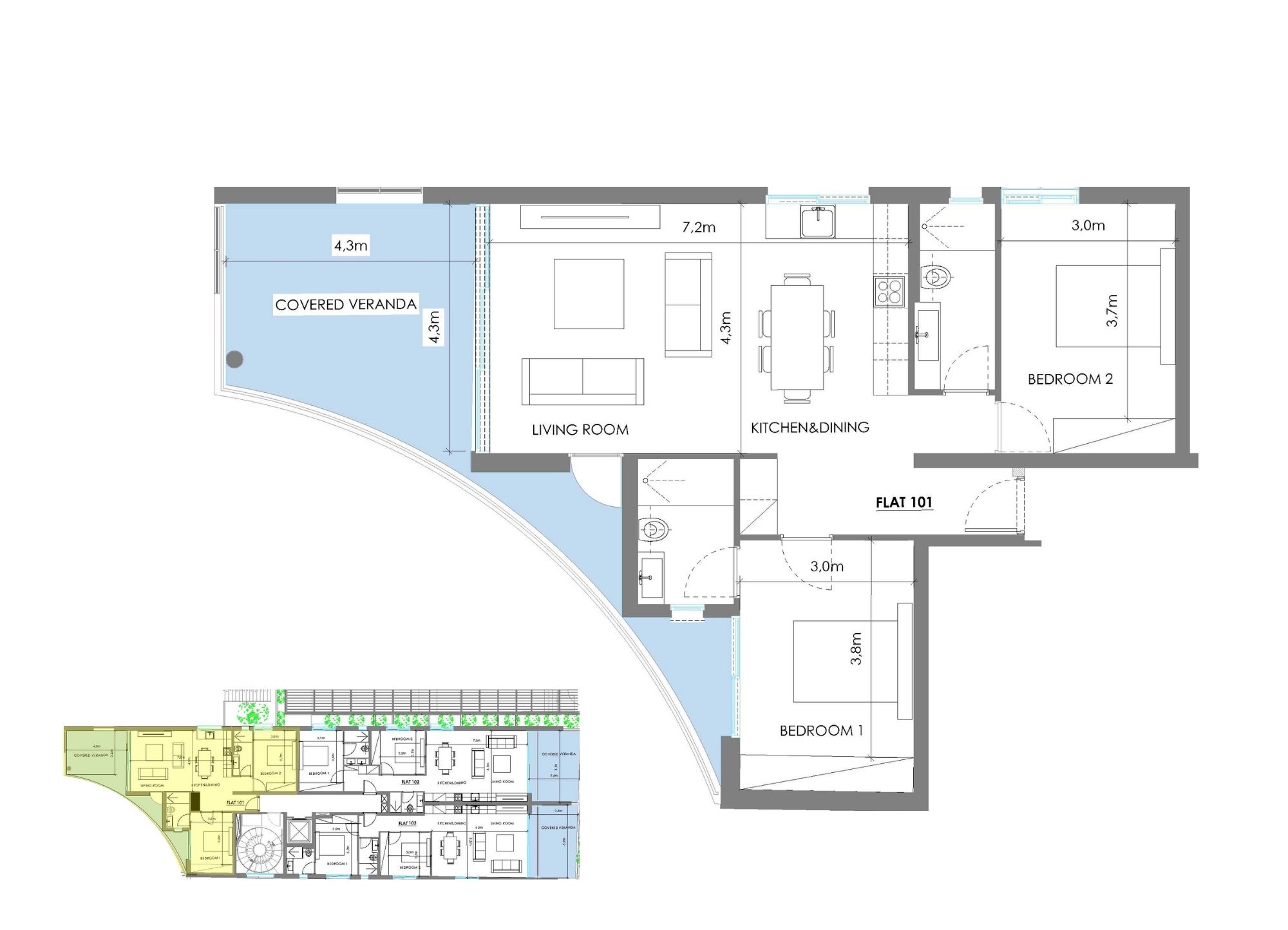
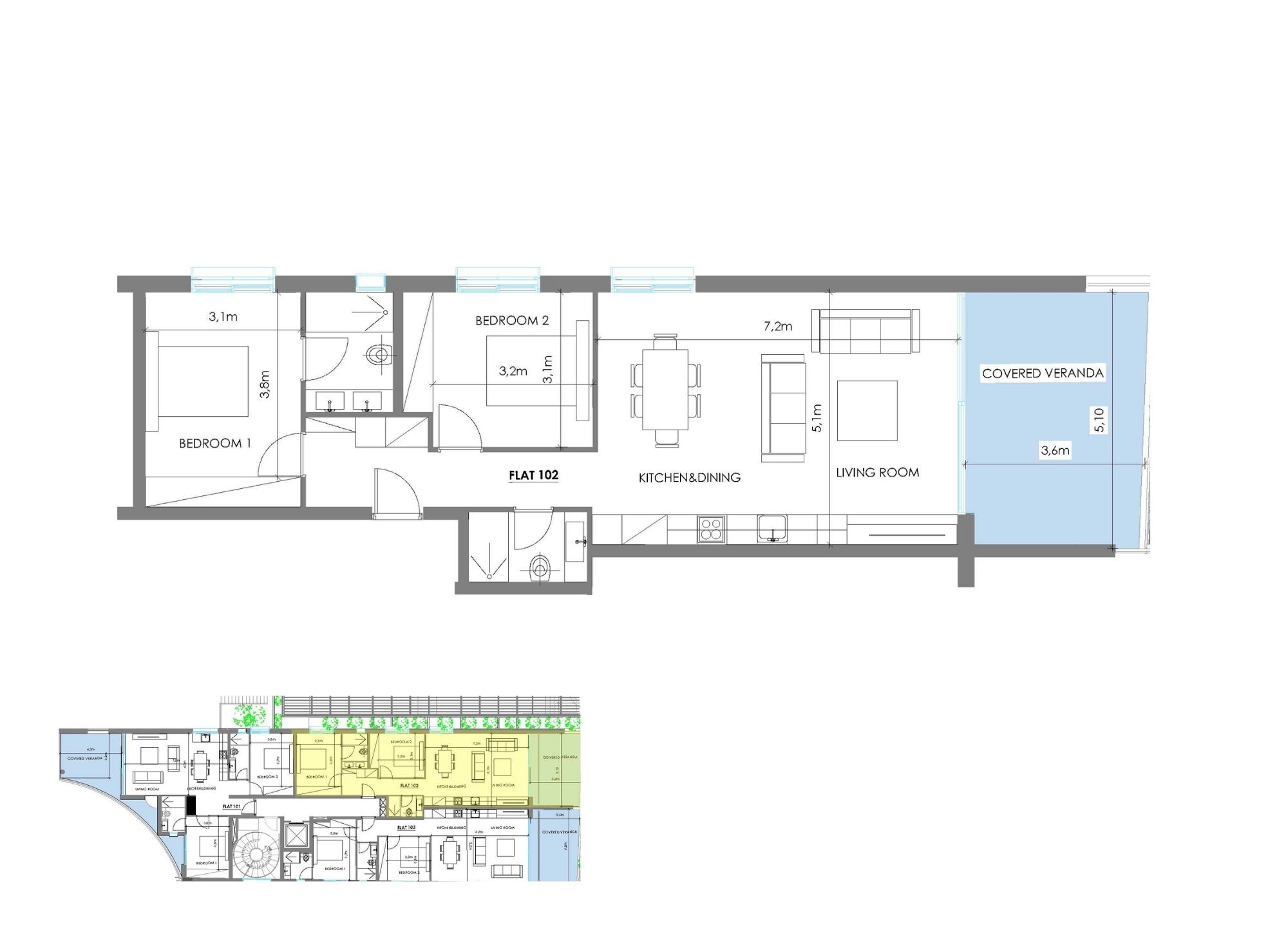
The building unfolds across three levels, with each floor comprising three apartments—two east-facing towards Metochiou Street and one west-facing - all optimized for natural light.
Living
Electra’s interiors are designed to maximise comfort, light and functionality. The large openings and deep balconies strengthen the relationship between interior and exterior spaces, flooding the apartments with natural light and fresh air.
Specifications
Electra will be built to a high standard with an emphasis on sustainability and occupant comfort. The structure will employ premium materials in earthy tones and textures so that the building harmonises with its environment and retains a discreet yet elegant appearance.
Residents’ vehicles will be accommodated in a semi‑basement parking level designed for safety and ease of use. Discreet integration of the parking preserves the ground floor area for landscaping and pedestrian access.
Availability
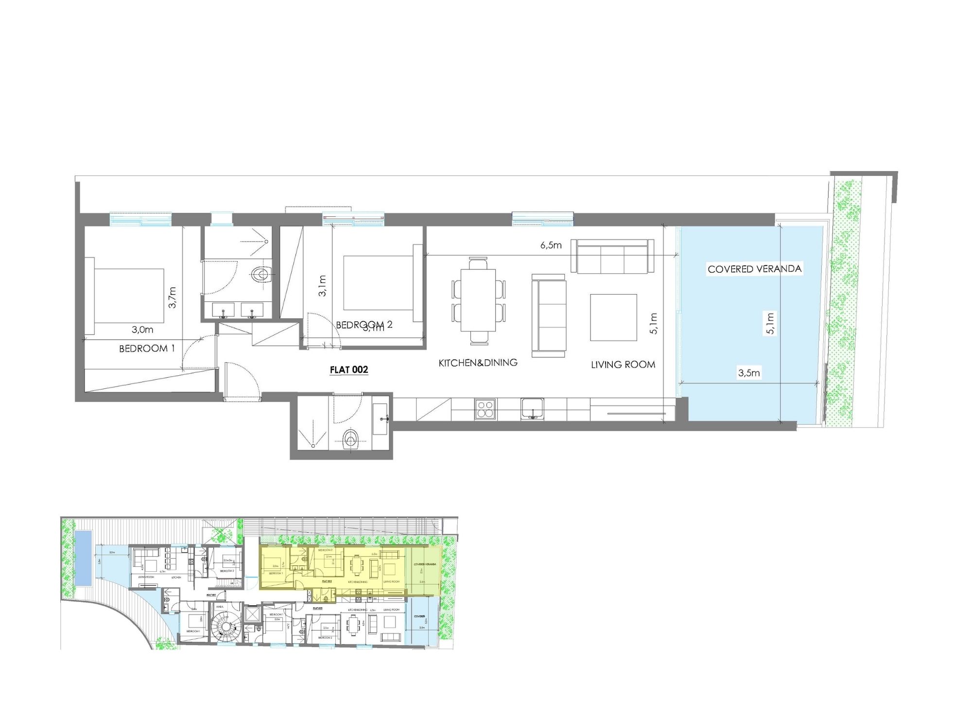
| Bedrooms | 2 |
| Internal Area (m2) | 85 |
| Covered Veranda (m2) | 22 |
| Communal Areas (m2) | 9 |
| Total Covered Area (m2) | 141 |
| Uncovered Area (m2) | 112 |
| Floor(s) | |
| Parking Spaces | 1 |
| Amenities Maid's Room |
|
| Bedrooms | 2 |
| Internal Area (m2) | 83 |
| Covered Veranda (m2) | 18 |
| Communal Areas (m2) | 8 |
| Total Covered Area (m2) | 109 |
| Uncovered Area (m2) | 4 |
| Floor(s) | |
| Parking Spaces | 1 |
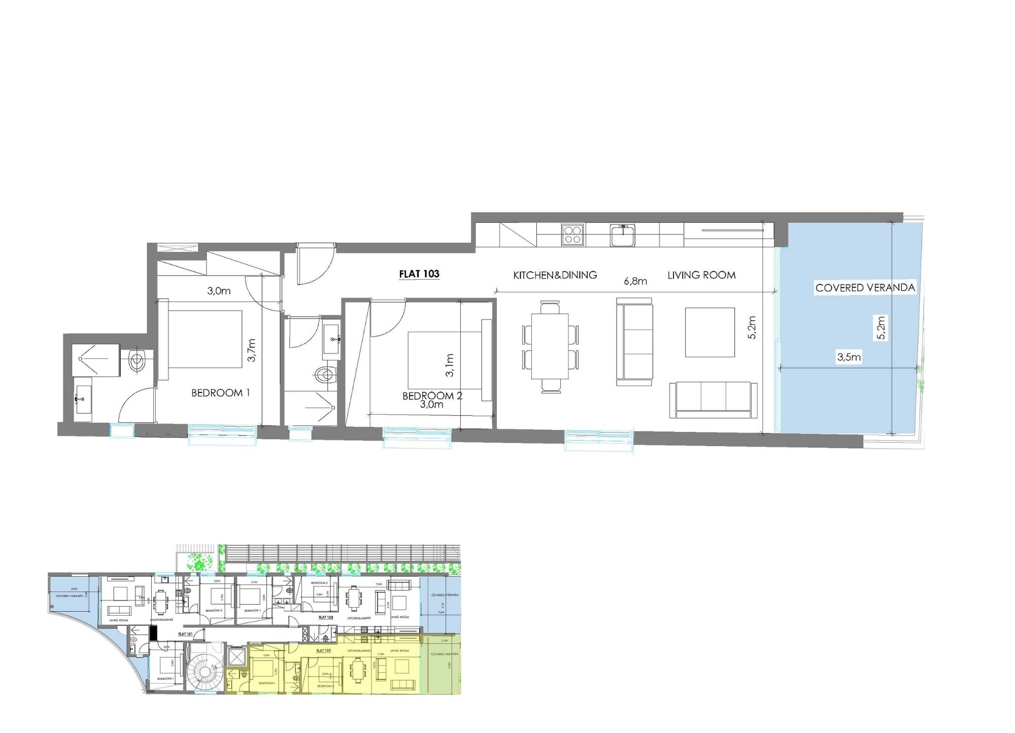
| Bedrooms | 2 |
| Internal Area (m2) | 83 |
| Covered Veranda (m2) | 17 |
| Communal Areas (m2) | 8 |
| Total Covered Area (m2) | 108 |
| Uncovered Area (m2) | 4 |
| Floor(s) | |
| Parking Spaces | 1 |
| Bedrooms | 2 |
| Internal Area (m2) | 85 |
| Covered Veranda (m2) | 26 |
| Communal Areas (m2) | 7 |
| Total Covered Area (m2) | 118 |
| Floor(s) | 1st floor |
| Parking Spaces | 1 |
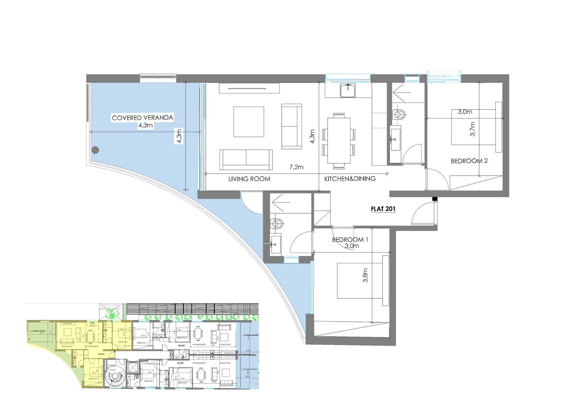
| Bedrooms | 2 |
| Internal Area (m2) | 87 |
| Covered Veranda (m2) | 18 |
| Communal Areas (m2) | 7 |
| Total Covered Area (m2) | 117 |
| Floor(s) | 1st floor |
| Parking Spaces | 1 |
| Bedrooms | 2 |
| Internal Area (m2) | 83 |
| Covered Veranda (m2) | 17 |
| Communal Areas (m2) | 7 |
| Total Covered Area (m2) | 107 |
| Floor(s) | 1st floor |
| Parking Spaces | 1 |
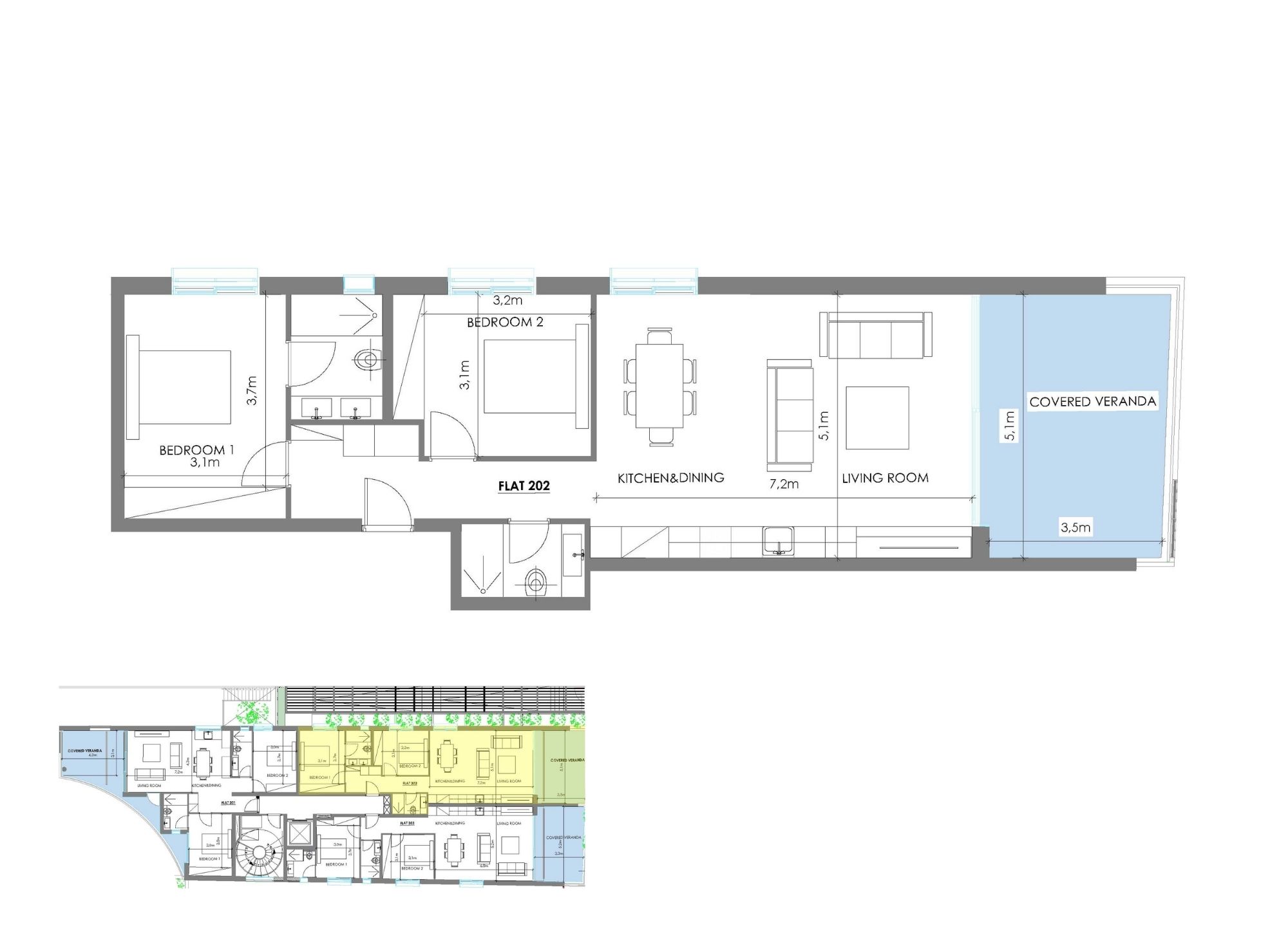
| Bedrooms | 2 |
| Internal Area (m2) | 85 |
| Covered Veranda (m2) | 26 |
| Communal Areas (m2) | 7 |
| Total Covered Area (m2) | 118 |
| Floor(s) | 2nd floor |
| Parking Spaces | 1 |
| Bedrooms | 2 |
| Internal Area (m2) | 87 |
| Covered Veranda (m2) | 18 |
| Communal Areas (m2) | 7 |
| Total Covered Area (m2) | 112 |
| Floor(s) | 2nd floor |
| Parking Spaces | 1 |
| Bedrooms | 2 |
| Internal Area (m2) | 83 |
| Covered Veranda (m2) | 17 |
| Communal Areas (m2) | 7 |
| Total Covered Area (m2) | 107 |
| Floor(s) | 2nd floor |
| Parking Spaces | 1 |
Location
The development stands on Metochiou Street in the special‑character area of Agios Andreas, Nicosia. Its proximity to the Pedieos linear park offers immediate access to green open space for recreation. At the same time, residents will enjoy effortless connections to the historic walled city and the commercial centre of Nicosia.
Get in Touch...
We would love to hear from you!
Please let us know how we can be of assistance, and we'll get back to you as quickly as possible.
Our Values
Customer Service
Committed to providing the best possible customer experience.
Our service to you begins when you first walk through the door, but doesn't end once we hand over the keys.