Calliste Residence showcases a stunning contemporary design that blends seamlessly with the Japanese-inspired elements.
The two and three bedroom apartments are thoughtfully designed with minimalist aesthetics in mind. Nestled in a prime location in Engomi, Calliste offers easy access to the city's finest dining, shopping, and cultural attractions, making it the perfect place to call home.Completion | Q1 2026
Inspiration
Architecture
Architecture
Living
Luxuriously appointed finishes, including sanitary fittings from the best European manufacturers.
Functional layouts with open-plan design and large floor-to-ceiling balcony doors. Premium Italian kitchens by Pedini (Fabrica).
Large full-height bedroom windows allow abundant light to infiltrate interior spaces.
Specifications
Unrivalled specifications are constantly revised and upgraded to ensure the very best quality from floor to ceiling.
Hand-in-hand with our design experts, you’ll have the opportunity to put your own personal touch, style and taste into all the finishes that truly make your house feel like a home.
Our creative staff is professionally-trained and well versed in the latest home design trends, eager to share their passion and knowledge to make your home functional and beautiful.
Availability
| Bedrooms | 2 |
| Internal Area (m2) | 78 |
| Covered Veranda (m2) | 23 |
| Communal Areas (m2) | 9 |
| Total Covered Area (m2) | 110 |
| Floor(s) | 1st floor |
| Parking Spaces | 1 |
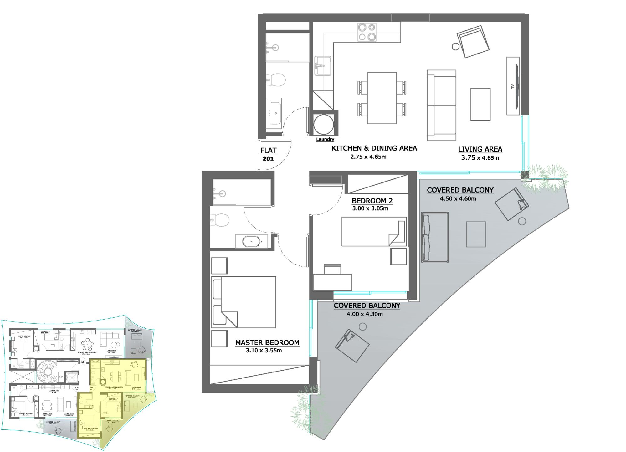
| Bedrooms | 2 |
| Internal Area (m2) | 87 |
| Covered Veranda (m2) | 20 |
| Communal Areas (m2) | 9 |
| Total Covered Area (m2) | 116 |
| Floor(s) | 1st floor |
| Parking Spaces | 1 |
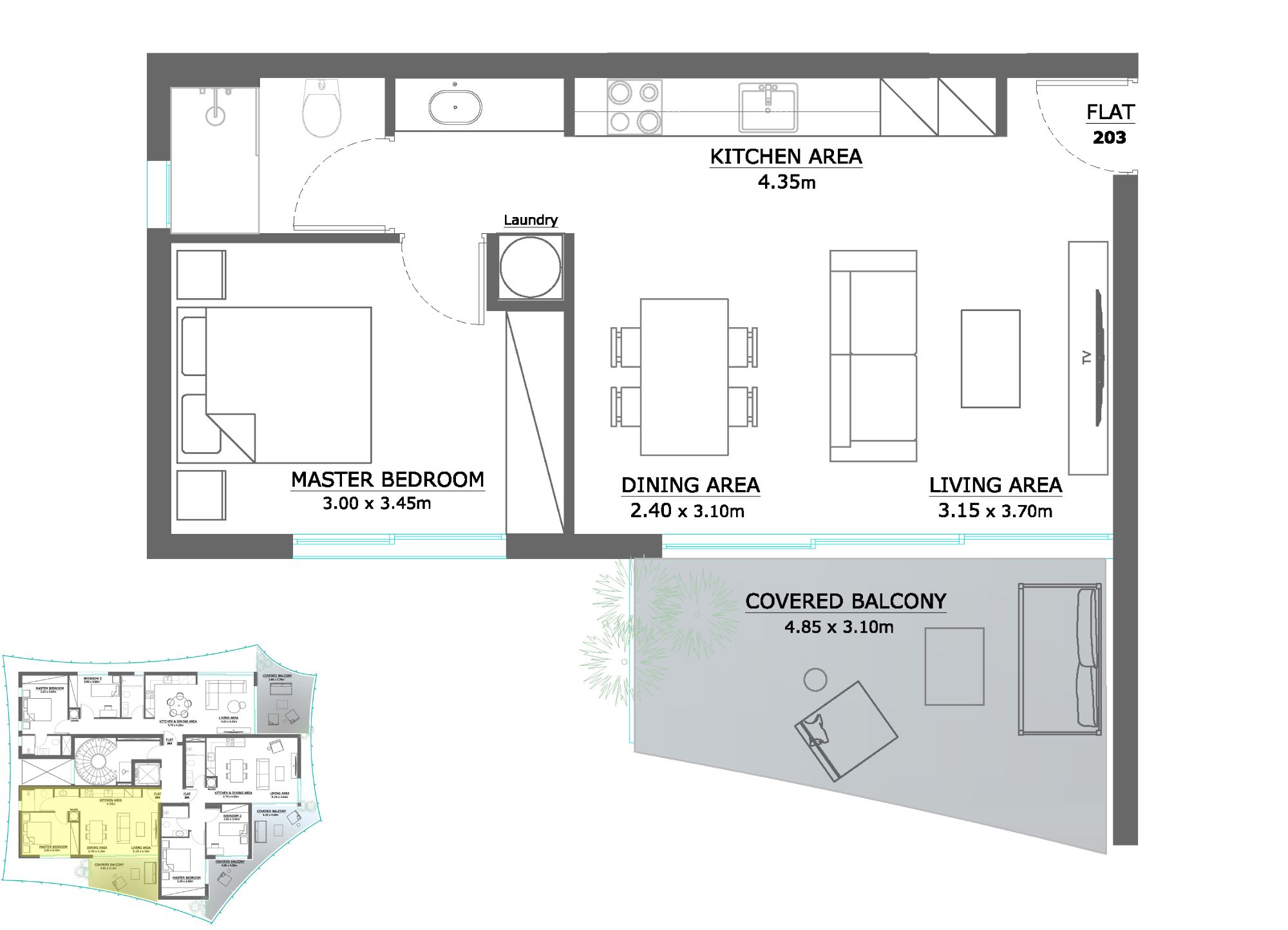
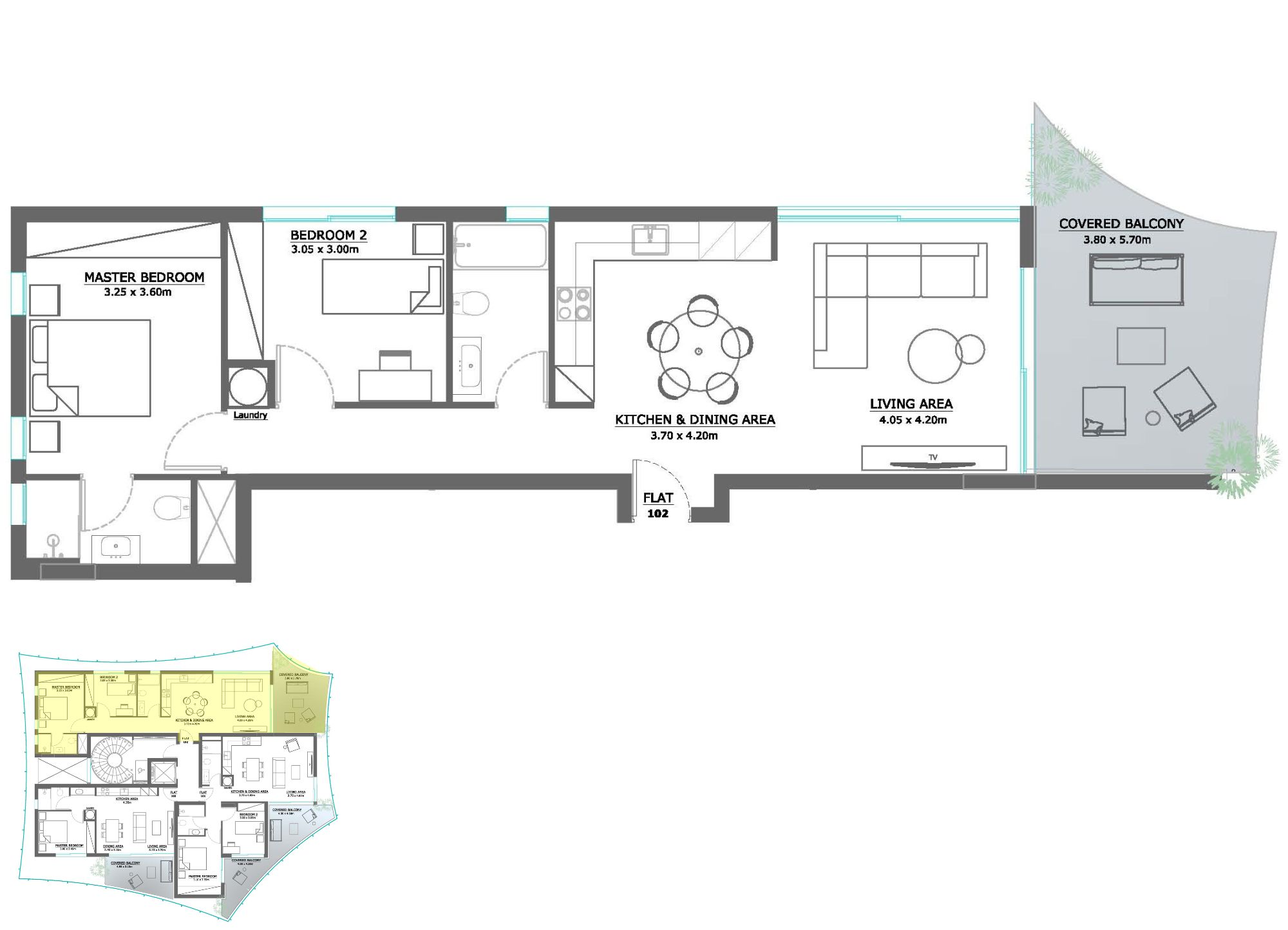
| Bedrooms | 1 |
| Internal Area (m2) | 53 |
| Covered Veranda (m2) | 14 |
| Communal Areas (m2) | 9 |
| Total Covered Area (m2) | 76 |
| Floor(s) | 1st floor |
| Parking Spaces | - |
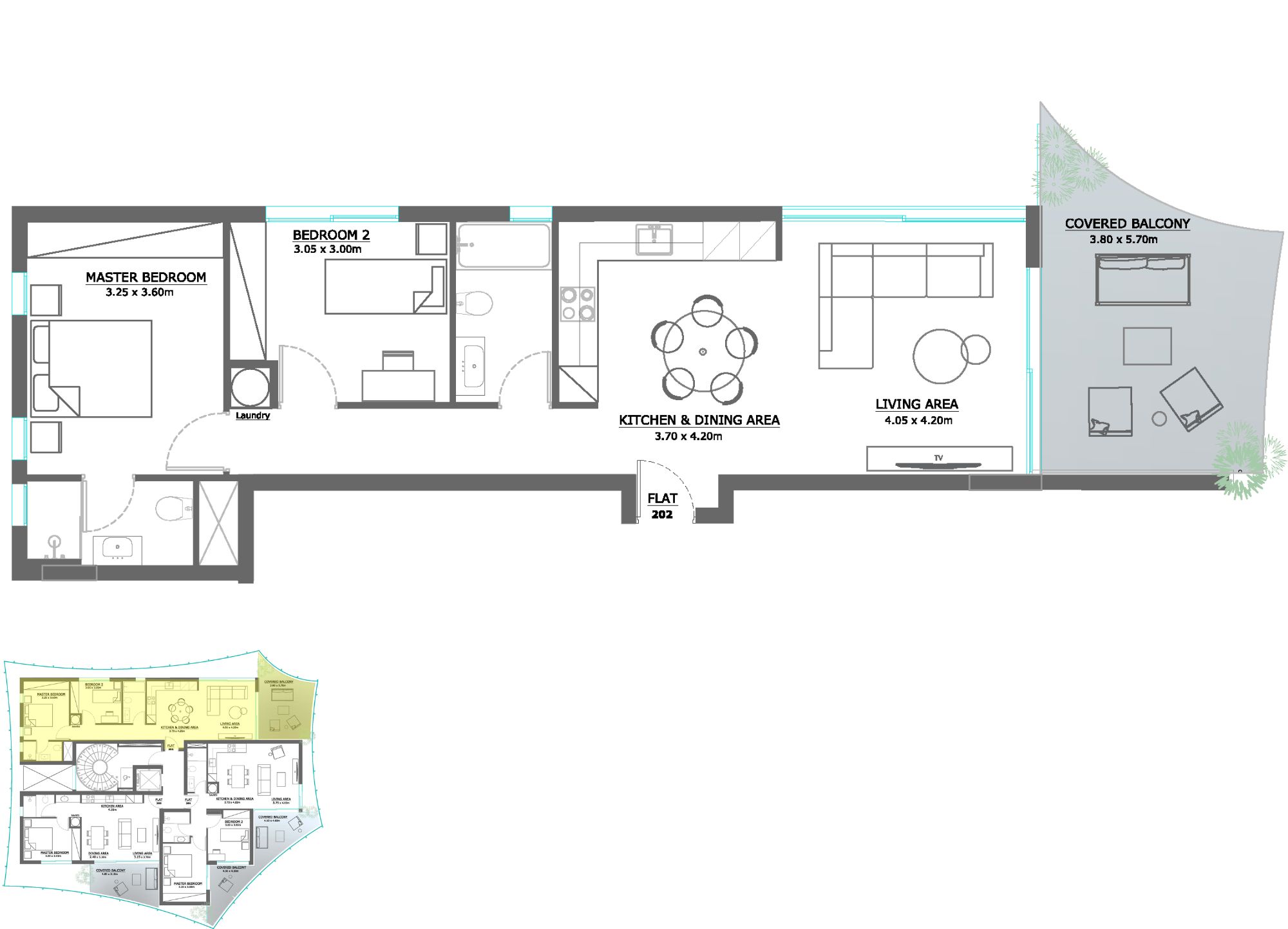
| Bedrooms | 2 |
| Internal Area (m2) | 78 |
| Covered Veranda (m2) | 23 |
| Communal Areas (m2) | 9 |
| Total Covered Area (m2) | 110 |
| Floor(s) | 2nd floor |
| Parking Spaces | 1 |
| Bedrooms | 2 |
| Internal Area (m2) | 87 |
| Covered Veranda (m2) | 20 |
| Communal Areas (m2) | 9 |
| Total Covered Area (m2) | 116 |
| Floor(s) | 2nd floor |
| Parking Spaces | 1 |
| Bedrooms | 1 |
| Internal Area (m2) | 53 |
| Covered Veranda (m2) | 14 |
| Communal Areas (m2) | 9 |
| Total Covered Area (m2) | 76 |
| Floor(s) | 2nd floor |
| Parking Spaces | 1 |
| Bedrooms | 3+1 |
| Internal Area (m2) | 123 |
| Covered Veranda (m2) | 36 |
| Communal Areas (m2) | 12 |
| Total Covered Area (m2) | 171 |
| Floor(s) | 3rd floor |
| Parking Spaces | 2 |
| Amenities Maid's Room |
|
| Bedrooms | 2 |
| Internal Area (m2) | 87 |
| Covered Veranda (m2) | 20 |
| Communal Areas (m2) | 12 |
| Total Covered Area (m2) | 119 |
| Floor(s) | 3rd floor |
| Parking Spaces | 1 |
| Amenities Maid's Room |
|
Location
Nestled in a prime location in Engomi, Calliste offers easy access to the city's finest dining, shopping, and cultural attractions, making it the perfect place to call home. Contact us today to schedule a private tour and experience the epitome of luxury living.
Γκετ ιν Τατς
Λορεμ ιπσουμ...
Our Values
Customer Service
Committed to providing the best possible customer experience.
Our service to you begins when you first walk through the door, but doesn't end once we hand over the keys.